Skip To Content

410 N Orange Avenue , #118

Sarasota, FL 34236
  • $450,000
  • STATUS: Active
  • ON SITE: 726 Days
  • MLS #: A4603657
UPDATED: 167 min ago
$450,000
  • 0
    BEDS
  • 1.39
    ACRES
  • 0
    BATHS
  • 0
    1/2 BATHS
  • 799
    SQFT
  • $563
    $/SQFT
Neighborhood:
Type:
Commercial
Built:
2025
County:
Area:

School Ratings & Info

Description

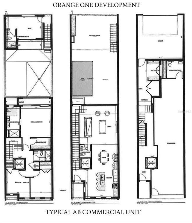
Pre-Construction. To be built. Introducing Orange One! Downtown Sarasota and the Rosemary District’s newest and brightest shining star, Orange One is a 30-unit mixed-use development in the red-hot Rosemary District. Ten three-story condominium residences, alongside 10 retail condominium spaces. Plus, another 10 three-story townhouses meander along 4th St. Why lease when you can own your own retail unit for under $400,000? These spacious, 799-square-foot retail spaces are lining the sidewalks of North Orange Ave. Three different floor plans are available. These are "gray boxes," meaning you get to finish them to your specific needs at your expense. Developers supply floor, wall, and ceiling systems, electric panels, fire sprinklers, and alarm systems, and we also rough in half-baths in each unit. Of course, all exterior glass and door systems are complete and maintained by HOA. Come take advantage and see why the Rosemary district is the place for your retail enterprise. Great traffic is to be expected in a great downtown location. Take a look around the location to see 65 restaurants within five blocks, as well as art galleries, theaters, farmers market, John Ringling Bridge, and Lido Beach all close by. Downtown shopping, culinary delights, and the Sarasota art scene are all at your doorstep. Just a few minutes away is Sarasota Bay and the new 50-acre Bay Sarasota Park, a game changer for everyone who lives, works, and plays in Sarasota. Call today for your private showing.

Monthly Payment Calculator




© 2026 My Florida Regional MLS DBA Stellar MLS. All rights reserved. All listings displayed pursuant to IDX. All listing information is deemed reliable but not guaranteed and should be independently verified through personal inspection by appropriate professionals. Listings displayed on this website may be subject to prior sale or removal from sale; availability of any listing should always be independently verified. Listing information is provided for consumers personal, non-commercial use, solely to identify potential properties for potential purchase; all other use is strictly prohibited and may violate relevant federal and state law. Data last updated 2026-03-13T15:50:47.89.
www.bairdrealtygroup.com/homes/148646329
Print Image

410 N Orange Avenue , #118 Sarasota, FL 34236

  • Price: $450,000
  • Status: Active
  • On Site: 726 Days
  • Updated: 167 min ago
  • MLS #: A4603657
0
Beds
0
Baths
0
½ Baths
1.39
Acres
799
SQFT
$563
$/SQFT
2025
Built
Neighborhood:
Orange One
County:
Sarasota
Area:
Sarasota
Property Description
Pre-Construction. To be built. Introducing Orange One! Downtown Sarasota and the Rosemary District’s newest and brightest shining star, Orange One is a 30-unit mixed-use development in the red-hot Rosemary District. Ten three-story condominium residences, alongside 10 retail condominium spaces. Plus, another 10 three-story townhouses meander along 4th St. Why lease when you can own your own retail unit for under $400,000? These spacious, 799-square-foot retail spaces are lining the sidewalks of North Orange Ave. Three different floor plans are available. These are "gray boxes," meaning you get to finish them to your specific needs at your expense. Developers supply floor, wall, and ceiling systems, electric panels, fire sprinklers, and alarm systems, and we also rough in half-baths in each unit. Of course, all exterior glass and door systems are complete and maintained by HOA. Come take advantage and see why the Rosemary district is the place for your retail enterprise. Great traffic is to be expected in a great downtown location. Take a look around the location to see 65 restaurants within five blocks, as well as art galleries, theaters, farmers market, John Ringling Bridge, and Lido Beach all close by. Downtown shopping, culinary delights, and the Sarasota art scene are all at your doorstep. Just a few minutes away is Sarasota Bay and the new 50-acre Bay Sarasota Park, a game changer for everyone who lives, works, and plays in Sarasota. Call today for your private showing.
Exterior Features

Adjoining Property Residential Construction Materials BlockConcreteOther Foundation Details Slab Lot Features Central Business DistrictCurb and GuttersFire HydrantHistoric DistrictCity LotNear Public TransitNeighbourhoodRetail CondoSidewalkStreet Lights Parking Features NoneOther Road Frontage Type Street LightsStreet PavedCity Street Road Surface Type PavedAsphalt Roof Built-UpMembrane Water Access Yn No Water Extras Yn No Water View Yn No Waterfront Feet Total 0 Waterfront Yn No

Interior Features

Accessibility Features Accessible Approach with RampAccessible DoorsAccessible Entrance Building Area Total 799 Ceiling Height 10 to 15 Feet Ceiling Type None Cooling None Cooling YN No Flooring Concrete Freezer Space Yn No Levels One Number Of Conference Meeting Rooms 1 Number Of Offices 1 Sewer Public Sewer Stories Total 1

Property Features

Converted Residence Yn No Electric 100 Amp Service Flood Zone Code X Listing Terms CashConventional New Construction Yn Yes Ownership Condominium Projected Completion Date 3/15/2026 4:00:00 AM Property Condition Pre-Construction Property Sub Type Business Realtor Info Brochure AvailableDocs AvailableFloor Plan Available Required Remarks Pre-Construction. To be built. Security Features Fire AlarmFire Sprinkler System Space Type New Special Listing Conditions None Tax Annual Amount 3555 Total Annual Fees 0 Total Monthly Fees 0 Utilities BB/HS Internet CapableElectrical NearbyElectricity AvailablePhone AvailablePublicSewer NearbyWater Nearby Zoning DTE


Listing information © 2026 My Florida Regional MLS DBA Stellar MLS..
Listing provided courtesy of PREMIER SOTHEBY'S INTERNATIONAL REALTY: 941-364-4000.



© 2026 My Florida Regional MLS DBA Stellar MLS. All rights reserved. All listings displayed pursuant to IDX. All listing information is deemed reliable but not guaranteed and should be independently verified through personal inspection by appropriate professionals. Listings displayed on this website may be subject to prior sale or removal from sale; availability of any listing should always be independently verified. Listing information is provided for consumers personal, non-commercial use, solely to identify potential properties for potential purchase; all other use is strictly prohibited and may violate relevant federal and state law. Data last updated 2026-03-13T15:50:47.89.
 
https://bt-photos.global.ssl.fastly.net/mfr/orig_boomver_1_A4603657-2.jpg https://bt-photos.global.ssl.fastly.net/mfr/orig_boomver_1_A4603657-2.jpg https://bt-photos.global.ssl.fastly.net/mfr/orig_boomver_1_A4603657-2.jpg
Logo
Baird Realty Group
6695 Gulf Boulevard
St. Pete Beach FL, 33706